WOHNEN AM PARK - HAUS 3

Mehrfamilienhaus mit 8 Eigentumswohnungen und Tiefgarage | Parkstraße 21 in 87439 Kempten

Ihr neues Zuhause!

87439 Kempten, Parkstraße 21 - Haus 3

Unsere exklusiven Immobilienangebote bieten Ihnen erstklassigen Komfort und modernes Wohnen. Profitieren Sie von erstklassigem Service und finden Sie jetzt Ihre Traumimmobilie – Ihre neue Heimat erwartet Sie bereits!

Haus 3

Ansicht Osten
Ansicht Westen
Ansicht Norden
Ansicht Süden

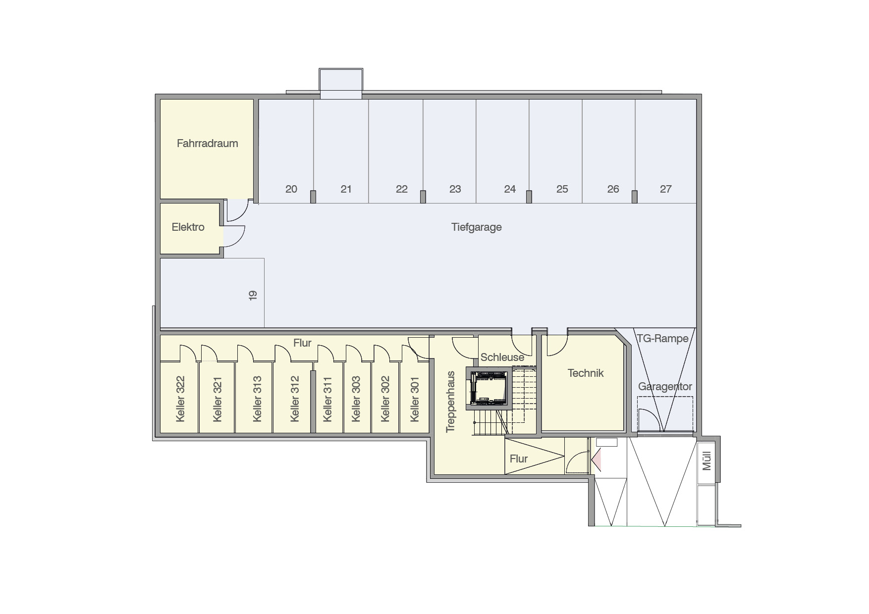
Kellergeschoss

Erdgeschoss

WOHNUNGETAGEWOHNFLÄCHE ca.ZIMMERKAUFPREISTIEFGARAGE
301Erdgeschoss46,17 m²2- Zimmer339.000 €28.000 €
302Erdgeschoss87,81 m²3- ZimmerVerkauftVerkauft
303Erdgeschoss86,33 m²3- ZimmerVerkauftVerkauft

Wohnung 301

Zimmer: 2

Wohnfläche: 46,17 m²

Kaufpreis: 339.000 €

Tiefgarage: 28.000 €


Wohnung 302 - VERKAUFT

Zimmer: 3

Wohnfläche: 87,81 m²

Kaufpreis: -

Tiefgarage: -


Wohnung 303 - VERKAUFT

Zimmer: 3

Wohnfläche: 86,33 m²

Kaufpreis: -

Tiefgarage: -


Obergeschoss

WOHNUNGETAGEWOHNFLÄCHE ca.ZIMMERKAUFPREISTIEFGARAGE
311Obergeschoss50,32 m²2- ZimmerVerkauftVerkauft
312Obergeschoss93,03 m²3- ZimmerVerkauftVerkauft
313Obergeschoss88,99 m²3- ZimmerVerkauftVerkauft

Wohnung 311 - VERKAUFT

Zimmer: 2

Wohnfläche: 50,32 m²

Kaufpreis: -

Tiefgarage: -


Wohnung 312 - VERKAUFT

Zimmer: 3

Wohnfläche: 93,03 m²

Kaufpreis: -

Tiefgarage: -


Wohnung 313 - VERKAUFT

Zimmer: 3

Wohnfläche: 88,99 m²

Kaufpreis: -

Tiefgarage: -


Dachgeschoss

WOHNUNGETAGEWOHNFLÄCHE ca.ZIMMERKAUFPREISTIEFGARAGE
321Dachgeschoss111,33 m²3- ZimmerVerkauftVerkauft
322Dachgeschoss106,88 m²3- Zimmer849.000 €28.000 €

Wohnung 321 - VERKAUFT

Zimmer: 3

Wohnfläche: 111,33 m²

Kaufpreis: -

Tiefgarage 2 Stellplätze: -


Wohnung 322

Zimmer: 3

Wohnfläche: 106,88 m²

Kaufpreis: 849.000 €

Tiefgarage: 28.000 €


Kontakt  Impressum   Datenschutz Hinweisgeberschutzportal
© 2025 Hubert Schmid Bauunternehmen GmbH